Строительство бани из профилированного бруса - «Бани и сауны» » Все о Сауне

Строительство бани из профилированного бруса - «Бани и сауны»

2-09-2018, 13:35   Аристарх   Нашли ошибку?    Мы в Яндекс.Дзен






Иметь собственную баню – мечта многих. Если у вас есть участок, на котором ее можно построить, то одним из лучших вариантов будет сделать баню из профилированного бруса. Этот материал экологичен, надежен и как нельзя лучше подходит. Строительство бани из профилированного бруса и особенности этого процесса, достоинства и недостатки таких строений, а также ориентировочная стоимость под ключ – это все вы найдете ниже.



Виды бань из профилированного бруса и различные варианты конструкций


Кажется, что баня – это баня. Какие там могут быть разновидности? На самом деле строительство этого сооружения пестрит возможностями. Например, вы можете построить баню из профилированного бруса с верандой. Это очень хороший вариант в тех случаях, когда вы планируете совмещать отдых в парной с приготовлением шашлыков и расслаблением на природе. Мангал можно использовать переносной или подготовить место для стационарного, но учитывая высокий риск возгорания деревянных строений, лучше сделать специальную крытую площадку неподалеку. Вот так выглядят бани с верандой:



Строительство бани из профилированного бруса - «Бани и сауны»


Еще один неплохой и более дешевый вариант для отдыха на природе и в парной – баня с террасой. К сожалению, она подойдет только для хорошей погоды, так как крыша над террасой отсутствует:




Еще один из интересных вариантов – баня с мансардой. Благодаря такой конструкции строение приобретает дополнительные функции и может служить полноценным домиком для гостей, если в предбаннике установить необходимую бытовую кухонную технику и раковину для удобства. Этот же домик можно сдавать в качестве флигеля или бани из профилированного бруса с мансардой для постоянного проживания, если строение оснащено отопительной системой. Приблизительный чертеж для подобного проекта:




Возможный вид внутри:





Внешне баня с мансардой может выглядеть так:





Но самая необычная и интересная конструкция у перевозных бань из профилированного бруса. Такой вариант удобен в тех случаях, если вы планируете переезжать или продавать участок. Тогда ваша любимица-баня сможет переехать с вами вместе. Она небольшая и транспортировка получается не сложной. Выглядят перевозные конструкции следующим образом:







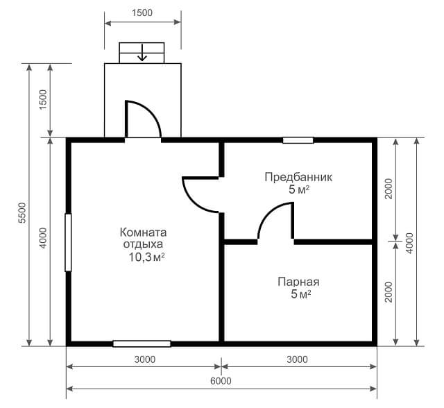
Немаловажным параметром для проекта бани являются ее размеры. Наиболее распространенные варианты: 6х6, 4х4, 6х4. От размеров сильно зависит цена проекта. На фото несколько вариантов чертежей для бань своими руками различных размеров. Обратите внимание, чем больше общая площадь здания, тем больше парилка, следовательно, большее количество людей может одновременно отдыхать в парной. Это очень актуально если у вас много друзей.


Чертеж бани 4х4.
Чертеж бани 6х4.
Чертеж бани 6х4.
Чертеж бани 6х6.

Преимущества и недостатки бань из профилированного бруса


У любого материала есть свои плюсы и минусы. Если вы решили строить баню из профилированного бруса обязательно ознакомьтесь с ее минусами:


  • для удешевления конструкции используют брус естественной влажности. В таких случаях срок усадки сооружения растягивается;

  • брус может коробиться (трескаться), что уменьшает его теплоизоляционные свойства и сокращает срок эксплуатации. Предотвратить это полностью невозможно, но можно купить брусья с компенсационным пазом;

  • низкая квалификация сборщиков делает строение некачественным и недолговечным.

Но все минусы меркнут перед плюсами бань из профилированного бруса:


  • долгий срок эксплуатации – около 50 лет;

  • быстрое возведение. Еще быстрее собирается разве что каркасная баня;

  • экологичность и благоприятный микроклимат;

  • низкая теплопроводность (хорошо сохраняет тепло);

  • относительно невысокая стоимость;

  • можно не заливать фундамент, а использовать простые конструкции из бруса.

Отзывы владельцев бань из профилированного бруса


Большая часть отзывов владельцев бань из профилированного бруса в интернете положительная. Негативные отзывы обусловлены некачественной сборкой или неправильным выбором материалов (низкое качество), то есть желанием сэкономить на строительстве. К сожалению, поговорка «скупой платит дважды» как нельзя лучше иллюстрируется на примере бань из профилированного бруса. Несмотря на кажущуюся простоту конструкций и хорошую подготовку материалов для быстрой укладки, сделать ошибку не так сложно. Цена такой ошибки будет велика, так как отразится на эксплуатационных характеристиках (прежде всего – теплоизоляции) и сроке полезного использования.




Особенности строительства бань из профилированного бруса


Построить баню из профилированного бруса достаточно легко своими руками. Этапы строительства:


  1. Подготовка проекта. Следует учитывать свободное место, которое вы можете выделить на участке под застройку и собственные потребности. Возможно, вам для личного пользования подойдет размер 3х4 или 4х4, тогда нет смысла в лишних затратах на постройку большого здания. Готовые проекты можно найти в интернете, а можно подготовить чертеж самостоятельно.

  2. Возведение бани начинается с подготовки участка и заливки фундамента или его возведения, если он опорно-столбчатый. После окончательного застывания бетона или возведения опорной конструкции приступают к возведению стен, монтажу кровли и внутренних перегородок согласно проекту.

  3. Отделка. Бани из профилированного бруса удобны тем, что они не требуют больших затрат на отделку. Но потратить деньги на установку окон и дверей, подводку коммуникаций и установку оборудования в любом случае придется.

Вам обязательно понадобиться хотя бы 1 квалифицированный помощник, так как самому справится невозможно из-за веса брусьев. Особенно если вы сами не очень хорошо разбираетесь в строительстве.


В процессе возведения стен необходимо очень внимательно собирать конструкцию: правильно ставить нагели, не забывать про межвенцевой утеплитель и качественно установить обсадные коробки для окон.


При наличии компенсационного пропила укладывайте брусья так, чтобы он был в середине конструкции!


Если же у вас нет желания тратить время и силы на самостоятельное строительство, можно заказать возведение бани из профилированного бруса «под ключ». Подобную услугу предоставляют многие строительные компании. В результате вы получите быстрое возведение продуманного и прочного строения.




Цена бани из профилированного бруса


Если речь идет о цене на бани из профилированного бруса, тогда все прежде всего зависит от размеров здания. Например, баня из профилированного бруса 4х4 метра «под ключ» без дополнительных пристроек будет стоить вам около 180-260 тысяч рублей, а баня 6х6 метров – уже от 300 тысяч.


Важный момент: чем меньше диаметр бруса для постройки бани, тем выше конечная цена.


Конечно, окончательная стоимость проекта может быть подсчитана лишь на месте строительства и после обсуждения пожеланий заказчика. Дополнительная отделка резными или коваными элементами, установка оборудования, обустройство комнаты отдыха и подготовка участка под застройку без сомнения увеличат итоговую стоимость сооружения, поэтому прибавьте к изначальной цене хотя бы 20-30 тысяч рублей про запас, а ко времени возведения +30%, согласно с правилами проектного менеджмента.






Цитирование статьи, картинки - фото скриншот - Rambler News Service.
Иллюстрация к статье - Яндекс. Картинки.
Есть вопросы. Напишите нам.
Общие правила  поведения на сайте.

Иметь собственную баню – мечта многих. Если у вас есть участок, на котором ее можно построить, то одним из лучших вариантов будет сделать баню из профилированного бруса. Этот материал экологичен, надежен и как нельзя лучше подходит. Строительство бани из профилированного бруса и особенности этого процесса, достоинства и недостатки таких строений, а также ориентировочная стоимость под ключ – это все вы найдете ниже. Виды бань из профилированного бруса и различные варианты конструкций Кажется, что баня – это баня. Какие там могут быть разновидности? На самом деле строительство этого сооружения пестрит возможностями. Например, вы можете построить баню из профилированного бруса с верандой. Это очень хороший вариант в тех случаях, когда вы планируете совмещать отдых в парной с приготовлением шашлыков и расслаблением на природе. Мангал можно использовать переносной или подготовить место для стационарного, но учитывая высокий риск возгорания деревянных строений, лучше сделать специальную крытую площадку неподалеку. Вот так выглядят бани с верандой: Еще один неплохой и более дешевый вариант для отдыха на природе и в парной – баня с террасой. К сожалению, она подойдет только для хорошей погоды, так как крыша над террасой отсутствует: Еще один из интересных вариантов – баня с мансардой. Благодаря такой конструкции строение приобретает дополнительные функции и может служить полноценным домиком для гостей, если в предбаннике установить необходимую бытовую кухонную технику и раковину для удобства. Этот же домик можно сдавать в качестве флигеля или бани из профилированного бруса с мансардой для постоянного проживания, если строение оснащено отопительной системой. Приблизительный чертеж для подобного проекта: Возможный вид внутри: Внешне баня с мансардой может выглядеть так: Но самая необычная и интересная конструкция у перевозных бань из профилированного бруса. Такой вариант удобен в тех случаях, если вы планируете переезжать или продавать участок. Тогда ваша любимица-баня сможет переехать с вами вместе. Она небольшая и транспортировка получается не сложной. Выглядят перевозные конструкции следующим образом: Немаловажным параметром для проекта бани являются ее размеры. Наиболее распространенные варианты: 6х6, 4х4, 6х4. От размеров сильно зависит цена проекта. На фото несколько вариантов чертежей для бань своими руками различных размеров. Обратите внимание, чем больше общая площадь здания, тем больше парилка, следовательно, большее количество людей может одновременно отдыхать в парной. Это очень актуально если у вас много друзей. Чертеж бани 4х4. Чертеж бани 6х4. Чертеж бани 6х4. Чертеж бани 6х6. Преимущества и недостатки бань из профилированного бруса У любого материала есть свои плюсы и минусы. Если вы решили строить баню из профилированного бруса обязательно ознакомьтесь с ее минусами: для удешевления конструкции используют брус естественной влажности. В таких случаях срок усадки сооружения растягивается; брус может коробиться (трескаться), что уменьшает его теплоизоляционные свойства и сокращает срок эксплуатации. Предотвратить это полностью невозможно, но можно купить брусья с компенсационным пазом; низкая квалификация сборщиков делает строение некачественным и недолговечным. Но все минусы меркнут перед плюсами бань из профилированного бруса: долгий срок эксплуатации – около 50 лет; быстрое возведение. Еще быстрее собирается разве что каркасная баня; экологичность и благоприятный микроклимат; низкая теплопроводность (хорошо сохраняет тепло); относительно невысокая стоимость; можно не заливать фундамент, а использовать простые конструкции из бруса. Отзывы владельцев бань из профилированного бруса Большая часть отзывов владельцев бань из профилированного бруса в интернете положительная. Негативные отзывы обусловлены некачественной сборкой или неправильным выбором материалов (низкое качество), то есть желанием сэкономить на строительстве. К сожалению, поговорка «скупой платит дважды» как нельзя лучше иллюстрируется на примере бань из профилированного бруса. Несмотря на кажущуюся простоту конструкций и хорошую подготовку материалов для быстрой укладки, сделать ошибку не так сложно. Цена такой ошибки будет велика, так как отразится на эксплуатационных характеристиках (прежде всего – теплоизоляции) и сроке полезного использования. Особенности строительства бань из профилированного бруса Построить баню из профилированного бруса достаточно легко своими руками. Этапы строительства: Подготовка проекта. Следует учитывать свободное место, которое вы можете выделить на участке под застройку и собственные потребности. Возможно, вам для личного пользования подойдет размер 3х4 или 4х4, тогда нет смысла в лишних затратах на постройку большого здания. Готовые проекты можно найти в интернете, а можно подготовить чертеж самостоятельно. Возведение бани начинается с подготовки участка и заливки фундамента или его возведения, если он опорно-столбчатый. После окончательного застывания бетона или возведения опорной конструкции приступают к возведению стен, монтажу кровли и внутренних перегородок согласно проекту. Отделка. Бани из профилированного бруса удобны тем, что они не требуют больших затрат на отделку. Но потратить деньги на установку окон и дверей, подводку коммуникаций и установку оборудования в любом случае придется. Вам обязательно понадобиться хотя бы 1 квалифицированный помощник, так как самому справится невозможно из-за веса брусьев. Особенно если вы сами не очень хорошо разбираетесь в строительстве. В процессе возведения стен необходимо очень внимательно собирать конструкцию: правильно ставить нагели, не забывать про межвенцевой утеплитель и качественно установить обсадные коробки для окон. При наличии компенсационного пропила укладывайте брусья так, чтобы он был в середине конструкции! Если же у вас нет желания тратить время и силы на самостоятельное строительство, можно заказать возведение бани из профилированного бруса «под ключ». Подобную услугу предоставляют многие строительные компании. В результате вы получите быстрое возведение продуманного и прочного строения. Цена бани из профилированного бруса Если речь идет о цене на бани из профилированного бруса, тогда все прежде всего зависит от размеров здания. Например, баня из профилированного бруса 4х4 метра «под ключ» без дополнительных пристроек будет стоить вам около 180-260 тысяч рублей, а баня 6х6 метров – уже от 300 тысяч. Важный момент: чем меньше диаметр бруса для постройки бани, тем выше конечная цена. Конечно, окончательная стоимость проекта может быть подсчитана лишь на месте строительства и после обсуждения пожеланий заказчика. Дополнительная отделка резными или коваными элементами, установка оборудования, обустройство комнаты отдыха и подготовка участка под застройку без сомнения увеличат итоговую стоимость сооружения, поэтому прибавьте к изначальной цене хотя бы 20-30 тысяч рублей про запас, а ко времени возведения 30%, согласно с правилами проектного менеджмента.


«vsaunu777.ru»