Баня 3 на 4: планировка внутри, проекты, фото - «Строительство» » Все о Сауне

Баня 3 на 4: планировка внутри, проекты, фото - «Строительство»

3-09-2018, 16:04   Елизар   Нашли ошибку?    Мы в Яндекс.Дзен







Баня 3 на 4: планировка внутри, проекты, фото - «Строительство»
Всё чаще владельцы земельных участков задумываются о том, чтобы построить на своих угодьях деревянную баню. И на это есть свои причины. Мало кто бы отказался от удовольствия попариться после утомительного дня, принять прохладный душ и отдохнуть на свежем воздухе. Воплотить давнюю идею о бане может сегодня каждый, ведь есть много разнообразных схем застройки дачных участков.


Содержание
  • Возведение бани по типовым проектам своими руками
    • Проект постройки 3 x 3 метра

    • Проект постройки 3 х 4 метра

  • Как произвести расчет площади помещения?

  • Месторасположение на участке и планировка бани

  • Встроенная и отдельно стоящая баня

  • Процесс возведения небольшой бани

  • Заключение

Даже если ваш участок не располагает большой площадью, то и для него вы можете выбрать оптимальный проект бани из бруса размером 3 х 4 метра. Он идеально подходит для компактных участков благодаря рациональной планировке помещений и удобной эксплуатации. За счет своих небольших размеров эта постройка компактно уместится на небольшой территории вдоль забора или угловой части двора.



Возведение бани по типовым проектам своими руками


Если ознакомиться с проектами, которые предлагают современные архитектурно-конструкторские компании, то среди них можно найти немало красивых вариантов негабаритных объектов. Наверняка среди них смогут подыскать для себя что-то интересное владельцы небольших приусадебных территорий, расположенных в пригороде. Как правило, планировка таких бань довольно скромная, ведь небольшие размеры не позволяют уместить в них всё, что бы хотел видеть владелец.



Бани размерами 3 x 3 и 3 x 4 метра пользуются популярностью у покупателей благодаря простой технологии сооружения и удобству сборки. Проектная документация составляется с учетом действующих норм и правил деревянного строительства и содержит точную смету материалов с указанием их количества и экономических затрат. При желании можно оформить заказ на строительство бани по индивидуальному проекту, который будет скомпонован в соответствии с предпочтениями клиента.



Проект постройки 3 x 3 метра




Бани размерами 3 x 3 метра отлично подходят для небольших земельных наделов, поэтому прекрасно вписываются в ландшафт стандартного дачного участка площадью 6 соток. При строительстве загородного дома дачники пытаются сэкономить на всём, поэтому найти здесь просторные внутренние помещения крайне сложно. Поэтому вполне логично, что и комната отдыха, а также моечное отделение будут компактными.

Проект интерьера бани негабаритных размеров учитывает каждую мелочь. Правильно подобранные материалы для внутренней отделки создают атмосферу уюта и тепла. Как правило, здесь используют осину, кедр или липу. И хотя парная является довольно небольшим помещением, ее площади достаточно для того, чтобы быстро нагнетать пар, а это исключает перерасход топлива.



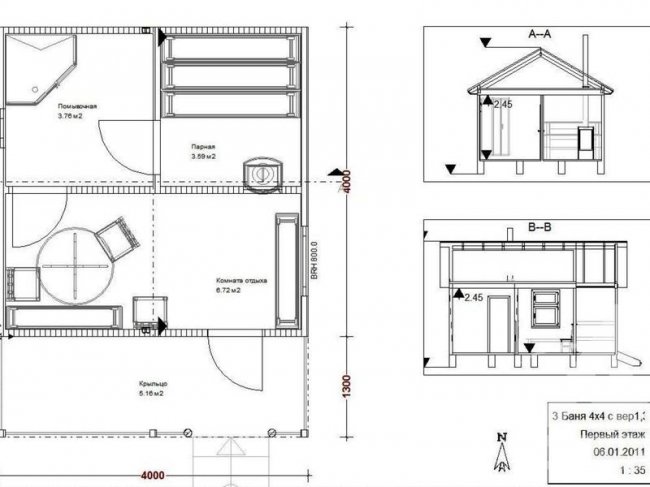
Проект постройки 3 х 4 метра



При составлении проектов для бань размерами 3 x 4 метра из профилированного бруса выбирается планировка, включающая три обязательных помещения:



  • комнату отдыха;

  • моечную;

  • парное отделение.

При желании для таких объектов можно подобрать интересные проекты бань с верандой, которые могут быть оформлены вагонкой из осины. Веранда является полезным дополнением, поскольку помогает визуально увеличить пространство и без того небольшого помещения. Это, в свою очередь, создает более комфортные условия для отдыха.



Бани из профильного бруса пользуются большей популярностью, в отличие от срубов. Объясняется это тем, что эти объекты не подвержены усадке, что позволяет начать их эксплуатировать уже после завершения строительства.



Как произвести расчет площади помещения?


Внутренняя планировка классических бань из бруса не предусматривает каких-либо изысков и включает в себя три обязательных помещения:



  • предбанник;

  • мыльник-моечную;

  • парилку.


В последнем помещении обязательно возводится каменка, которая обеспечивает подачу пара.

Процесс монтажа каменки своими руками достаточно сложный и потому должен выполняться квалифицированным печником. Ее необходимо расположить таким образом, чтобы одна из сторон соприкасалась со стеной предбанника, одновременно выступая отопительным элементом смежного помещения. Для каменки рекомендуется выбирать место в углу за входящей в отделение дверью. Некоторые покупатели могут установить в предбаннике дополнительный источник тепла — металлическую буржуйку. В обоих случаях для отопления печей используется дровяное топливо.



По принятым правилам, в парной устраивают полки, выбирая для них такую высоту установки, чтобы на них можно было лечь во весь рост, а при вставании не задеть головой потолок. Чаще всего основную полку делают в несъемном виде. Платформа является стационарной и устанавливается с небольшим отступом относительно верхнего уровня камней, формирующих каменку. Поэтому при расчете высоты потолка необходимо учитывать уровень полок.



Планировка некоторых бань может включать широкие лавки, на которых можно удобно разместиться с ногами. Обычно лавок бывает две — низкие и высокие. При расчете оптимальной площади парного отделения исходят из того, чтобы создать комфортные условия для принимающих банные процедуры людей. Иными словами, основным ориентиром для расчёта этого показателя является количество человек, которые будут одновременно находиться в парной.



Месторасположение на участке и планировка бани



Как и любое строительство, возведение бани своими руками в обязательном порядке предваряется проведением необходимых замеров и выполнением расчетов. Этим процессам нужно уделить особое внимание тем владельцам, кому предстоит строить баню на небольшой территории. Наиболее подходящим для этого строения является место на возвышенности. Это дает возможность организовать систему стока вод так, чтобы они естественным путем выводились из бани. Первоначальным этапом строительства бани своими руками является сооружение фундамента, но перед этим необходимо составить точную схему подведения различных коммуникаций и в соответствии с ней строить основание для бани.

Владельцам небольших приусадебных территорий можно предложить схему размещения бани, когда к ней подводятся коммуникации от основного дома. Это поможет существенно сэкономить пространство на участке. Еще один плюс этого решения заключается в том, что можно уменьшить затраты на приобретение и прокладку инженерного оборудования:



  • канализации;

  • освещения;

  • водопровода.

На этапе планировки внутренних помещений своими руками очень важно максимально рационально распорядиться полезным пространством, чтобы предбанник и моечное отделение получились достаточно просторными, их площадь было одинаковой и составляла около 6 кв. м.



Не помешает установить на входе небольшой тамбур, который поможет защитить внутренние помещения от осадков и других неблагоприятных воздействий внешней среды зимой и в межсезонье.



С учетом небольших размеров в бане имеет смысл выделить под парную площадь примерно 9 кв. м. Она должна иметь квадратную форму и низкий потолок, что позволит ускорить процесс прогревания помещения. Также рекомендуется добавить в планировку высокий порог, чтобы уменьшить отток пара и потери тепла из парной. Стену парной, которая будет смежной с предбанником, рекомендуется делать в глухом варианте. Пространство вдоль нее используют для размещения в несколько рядов полок.



Как было сказано выше, место в углу за дверью отводится под каменку, которая размещается по схеме, предполагающей примыкание одним из боков к стене с предбанником. Это позволит одновременно нагревать и соседнее помещение. В стене, расположенной напротив входа в парную, следует устроить оконный проем, а вдоль нее устанавливают деревянные скамьи с присущими для банного процесса аксессуарами.



Иногда в целях экономии планировка для маленькой бани включает только два помещения — парную и предбанник. При такой схеме планировки парная выполняет роль помывочной, а предбанник служит одновременно прихожей, раздевалкой и комнатой отдыха. Тогда печь выносится в парное отделение, а загрузку топлива в нее осуществляют непосредственно из предбанника, который в рамках этого варианта планировки выполняет функцию топочной.



Встроенная и отдельно стоящая баня



В каждом проекте для бани можно выбрать различные варианты ее расположения. К примеру, ее можно соорудить как в виде постройки, примыкающей к основному дому, так и отдельно стоящей конструкции. Но вне зависимости от выбранного варианта, она всегда получается небольшой и обычно имеет размеры 3 x 3 или 3 x 4 кв. м.

На этапе разработки проекта для отдельно стоящих бань в него можно включить различные дополнения в виде веранды, бассейна. Но все эти идеи необходимо обязательно рассматривать с привязкой к имеющейся свободной территории. Если это соотносится со взглядами собственника участка, то можно рассмотреть проект, при котором баня и гараж располагаются под одной крышей. Чаще всего покупатели заказывают проекты бани с мансардой, позволяющие использовать это помещение как комнату для бильярда, кабинету или спальню. Также она может выполнять функцию домика для гостей.



Из минусов, которыми обладают отдельно стоящие бани, главным можно назвать необходимость дополнительного утепления. Что же касается конструкций, возводимых впритык к основному дому, то для них требуется проводить утепление лишь в парной. Отдельно стоящие бани приходится утеплять целиком, создавая теплозащитный барьер в каждом помещении. Исключением может быть только топочная при условии, что она возведена за периметром стен.



Но при всех сложностях, которые возникают в процессе благоустройства настоящей бани, у нее имеется одно неоспоримое преимущество – это строение является абсолютно пожаробезопасным и не представляет никакой угрозы для общего дома.



Процесс возведения небольшой бани



При строительстве маленьких бань прослеживается экономия практически на каждом этапе работ. Это касается, как возведения фундамента, так и проведения отделочных работ внутри помещений. Для проекта небольшой бани чаще всего выбирается ленточное основание облегченной конструкции. Серьезной экономии средств удается добиться на этапе закупки стройматериалов. Хотя возводимые строения являются негабаритными, чаще всего ожидаемых трудностей во время соединения рядов бревен при их укладке и подбора подходящих пиломатериалов не возникает.

Небольшие бани обеспечивают неоспоримое преимущество владельцу, которое связано с процессом их отопления. Для таких конструкций достаточно оборудования минимальной мощности, которое стоит гораздо дешевле традиционных печей. Дополнительная возможность для экономии открывается при выборе технического обеспечения бани. Как правило, здесь выбирается самый примитивный и легкий в управлении вариант.






Заключение



Бани 3 х 4 метра очень популярны у многих владельцев дачных участков в первую очередь из-за их компактности. Чаще всего владельцы задумываются о строительстве бани, когда все другие постройки уже возведены и для бани стандартных размеров не остается места. Баня 3 х 4 м для них становится буквально спасением, поскольку позволяет с максимальной эффективностью использовать оставшееся свободное пространство. Хотя для владельцев возможности планировки бани ограничены, но у них появляется возможность сэкономить на эксплуатационных расходах, а также во время строительства бани.


Небольшие бани и обустройство их внутри
Цитирование статьи, картинки - фото скриншот - Rambler News Service.
Иллюстрация к статье - Яндекс. Картинки.
Есть вопросы. Напишите нам.
Общие правила  поведения на сайте.

Всё чаще владельцы земельных участков задумываются о том, чтобы построить на своих угодьях деревянную баню. И на это есть свои причины. Мало кто бы отказался от удовольствия попариться после утомительного дня, принять прохладный душ и отдохнуть на свежем воздухе. Воплотить давнюю идею о бане может сегодня каждый, ведь есть много разнообразных схем застройки дачных участков. Содержание Возведение бани по типовым проектам своими руками Проект постройки 3 x 3 метра Проект постройки 3 х 4 метра Как произвести расчет площади помещения? Месторасположение на участке и планировка бани Встроенная и отдельно стоящая баня Процесс возведения небольшой бани Заключение Даже если ваш участок не располагает большой площадью, то и для него вы можете выбрать оптимальный проект бани из бруса размером 3 х 4 метра. Он идеально подходит для компактных участков благодаря рациональной планировке помещений и удобной эксплуатации. За счет своих небольших размеров эта постройка компактно уместится на небольшой территории вдоль забора или угловой части двора. Возведение бани по типовым проектам своими руками Если ознакомиться с проектами, которые предлагают современные архитектурно-конструкторские компании, то среди них можно найти немало красивых вариантов негабаритных объектов. Наверняка среди них смогут подыскать для себя что-то интересное владельцы небольших приусадебных территорий, расположенных в пригороде. Как правило, планировка таких бань довольно скромная, ведь небольшие размеры не позволяют уместить в них всё, что бы хотел видеть владелец. Бани размерами 3 x 3 и 3 x 4 метра пользуются популярностью у покупателей благодаря простой технологии сооружения и удобству сборки. Проектная документация составляется с учетом действующих норм и правил деревянного строительства и содержит точную смету материалов с указанием их количества и экономических затрат. При желании можно оформить заказ на строительство бани по индивидуальному проекту, который будет скомпонован в соответствии с предпочтениями клиента. Проект постройки 3 x 3 метра Бани размерами 3 x 3 метра отлично подходят для небольших земельных наделов, поэтому прекрасно вписываются в ландшафт стандартного дачного участка площадью 6 соток. При строительстве загородного дома дачники пытаются сэкономить на всём, поэтому найти здесь просторные внутренние помещения крайне сложно. Поэтому вполне логично, что и комната отдыха, а также моечное отделение будут компактными. Проект интерьера бани негабаритных размеров учитывает каждую мелочь. Правильно подобранные материалы для внутренней отделки создают атмосферу уюта и тепла. Как правило, здесь используют осину, кедр или липу. И хотя парная является довольно небольшим помещением, ее площади достаточно для того, чтобы быстро нагнетать пар, а это исключает перерасход топлива. Проект постройки 3 х 4 метра При составлении проектов для бань размерами 3 x 4 метра из профилированного бруса выбирается планировка, включающая три обязательных помещения: комнату отдыха; моечную; парное отделение. При желании для таких объектов можно подобрать интересные проекты бань с верандой, которые могут быть оформлены вагонкой из осины. Веранда является полезным дополнением, поскольку помогает визуально увеличить пространство и без того небольшого помещения. Это, в свою очередь, создает более комфортные условия для отдыха. Бани из профильного бруса пользуются большей популярностью, в отличие от срубов. Объясняется это тем, что эти объекты не подвержены усадке, что позволяет начать их эксплуатировать уже после завершения строительства. Как произвести расчет площади помещения? Внутренняя планировка классических бань из бруса не предусматривает каких-либо изысков и включает в себя три обязательных помещения: предбанник; мыльник-моечную; парилку. В последнем помещении обязательно возводится каменка, которая обеспечивает подачу пара. Процесс монтажа каменки своими руками достаточно сложный и потому должен выполняться квалифицированным печником. Ее необходимо расположить таким образом, чтобы одна из сторон соприкасалась со стеной предбанника, одновременно выступая отопительным элементом смежного помещения. Для каменки рекомендуется выбирать место в углу за входящей в отделение дверью. Некоторые покупатели могут установить в предбаннике дополнительный источник тепла — металлическую буржуйку. В обоих случаях для отопления печей используется дровяное топливо. По принятым правилам, в парной устраивают полки, выбирая для них такую высоту установки, чтобы на них можно было лечь во весь рост, а при вставании не задеть головой потолок. Чаще всего основную полку делают в несъемном виде. Платформа является стационарной и устанавливается с небольшим отступом относительно верхнего уровня камней, формирующих каменку. Поэтому при расчете высоты потолка необходимо учитывать уровень полок. Планировка некоторых бань может включать широкие лавки, на которых можно удобно разместиться с ногами. Обычно лавок бывает две — низкие и высокие. При расчете оптимальной площади парного отделения исходят из того, чтобы создать комфортные условия для принимающих банные процедуры людей. Иными словами, основным ориентиром для расчёта этого показателя является количество человек, которые будут одновременно находиться в парной. Месторасположение на участке и планировка бани Как и любое строительство, возведение бани своими руками в обязательном порядке предваряется проведением необходимых замеров и выполнением расчетов. Этим процессам нужно уделить особое внимание тем владельцам, кому предстоит строить баню на небольшой территории. Наиболее подходящим для этого строения является место на возвышенности. Это дает возможность организовать систему стока вод так, чтобы они естественным путем выводились из бани. Первоначальным этапом строительства бани своими руками является сооружение фундамента, но перед этим необходимо составить точную схему подведения различных коммуникаций и в соответствии с ней строить основание для бани. Владельцам небольших приусадебных территорий можно предложить схему размещения бани, когда к ней подводятся коммуникации от основного дома. Это поможет существенно сэкономить пространство на участке. Еще один плюс этого решения заключается в том, что можно уменьшить затраты на приобретение и прокладку инженерного оборудования: канализации; освещения; водопровода. На этапе планировки внутренних помещений своими руками очень важно максимально рационально распорядиться полезным пространством, чтобы предбанник и моечное отделение получились достаточно просторными, их площадь было одинаковой и составляла около 6 кв. м. Не помешает установить на входе небольшой тамбур, который поможет защитить внутренние помещения от осадков и других неблагоприятных воздействий внешней среды зимой и в межсезонье. С учетом небольших размеров в бане имеет смысл выделить под парную площадь примерно 9 кв. м. Она должна иметь квадратную форму и низкий потолок, что позволит ускорить процесс прогревания помещения. Также рекомендуется добавить в планировку высокий порог, чтобы уменьшить отток пара и потери тепла из парной. Стену парной, которая будет смежной с предбанником, рекомендуется делать в глухом варианте. Пространство вдоль нее используют для размещения в несколько рядов полок. Как было сказано выше, место в углу за дверью отводится под каменку, которая размещается по схеме, предполагающей примыкание одним из боков к стене с предбанником. Это позволит одновременно нагревать и соседнее помещение. В стене, расположенной напротив входа в парную, следует устроить оконный проем, а вдоль нее устанавливают деревянные скамьи с присущими для банного процесса аксессуарами. Иногда в целях экономии планировка для маленькой бани включает только два помещения — парную и предбанник. При такой схеме планировки парная выполняет роль помывочной, а предбанник служит одновременно прихожей, раздевалкой и комнатой отдыха. Тогда печь выносится в парное отделение, а загрузку топлива в нее осуществляют непосредственно из предбанника, который в рамках этого варианта планировки выполняет функцию топочной. Встроенная и отдельно стоящая баня В каждом проекте для бани можно выбрать различные варианты ее расположения. К примеру, ее можно соорудить как в виде постройки, примыкающей к основному дому, так и отдельно стоящей конструкции. Но вне зависимости от выбранного варианта, она всегда получается небольшой и обычно имеет размеры 3 x 3 или 3 x 4 кв. м. На этапе разработки проекта для отдельно стоящих бань в него можно включить различные дополнения в виде веранды, бассейна. Но все эти идеи необходимо обязательно рассматривать с привязкой к имеющейся свободной территории. Если это соотносится со взглядами собственника участка, то можно рассмотреть проект, при котором баня и гараж располагаются под одной крышей. Чаще всего покупатели заказывают проекты бани с мансардой, позволяющие использовать это помещение как комнату для бильярда, кабинету или спальню. Также она может выполнять функцию домика для гостей. Из минусов, которыми обладают отдельно стоящие бани, главным можно назвать необходимость дополнительного утепления. Что же касается конструкций, возводимых впритык к основному дому, то для них требуется проводить утепление лишь в парной. Отдельно стоящие бани приходится утеплять целиком, создавая теплозащитный барьер в каждом помещении. Исключением может быть только топочная при условии, что она возведена за периметром стен. Но при всех сложностях, которые возникают в процессе благоустройства настоящей бани, у нее имеется одно неоспоримое преимущество – это строение является абсолютно пожаробезопасным и не представляет никакой угрозы для общего дома. Процесс возведения небольшой бани При строительстве маленьких бань прослеживается экономия практически на каждом этапе работ. Это касается, как возведения фундамента, так и проведения отделочных работ внутри помещений. Для проекта небольшой бани чаще всего выбирается ленточное основание облегченной конструкции. Серьезной экономии средств удается добиться на этапе закупки стройматериалов.


«vsaunu777.ru»