Гараж с баней – это многофункциональная постройка, в которой можно будет и заниматься рабочими делами, и отдыхать. Эта возможность привлекает многих людей. Некоторые предпочитают создать такую постройку своими руками. Чтобы отдых был полноценным, а работе ничего не мешало, нужно позаботиться о правильном обустройстве такого совмещенного помещения, о безопасности.
Такой вариант постройки часто используется в деревнях, где все помещения хозяева стараются расположить под одной крышей. Такой вариант считается наиболее универсальным. Подобные постройки занимают значительно меньше места, чем остальные.
Такая постройка может быть как одноэтажной, так и двухэтажной. Все зависит от особенностей проекта, а также от того, сколько имеется свободного пространства. При желании можно обустроить все так, чтобы одно из помещений находилось на цокольном этаже.
В любом случае – вариант с совмещенными помещениями намного дешевле.
Решая расположить гараж с баней под одной крышей, нужно понимать все преимущества, недостатки такого проекта и уметь превратить последние в плюсы, обезопасив себя и близких. К положительным моментам относится следующее: занимаясь обустройством бани рядом с гаражом, можно поставить в ней хорошую печку. Все необходимые материалы для растопки будут под рукой.
Как правило, в дальнем углу гаража отводится специальное место для хранения твердотопливных материалов.
Выгодно и то, что не нужно отдельно проводить коммуникации в каждое помещение. Они получаются объединенными. Система отопления, например, будет общей, а это значит, что зимой в гараже также можно будет работать и не мерзнуть.
Для заядлых автолюбителей очень важно и то, что всегда есть возможность хорошо вымыться после ремонта машины и не нести всю грязь в дом. То же самое относится и к тем, кто активно занимается садоводством или много работает над поддержанием приличного вида своего двора.
Совмещенный с баней гараж может быть выполнен из разных материалов. Как правило, приходится ориентироваться на бюджет, поскольку все варианты – из разных ценовых категорий.
Общее требование ко всем материалам, которые используются для строительства гаража, совмещенного с баней: они должны быть плотными и сохраняющими тепло внутри помещения. Для утепления могут использоваться различные материалы – например, теплоизолирующие панели.
Чаще всего такие помещения делают одноэтажными. Для строительства используются легкие материалы.
Как правило, подобные здания строят из шлакоблока, пеноблоков или других подобных материалов.
Часто строители вспоминают о давних традициях и строят бани, совмещенные с гаражом, из бревна или прочного клееного бруса. Это традиционный вариант, который украсит, например, двор в стиле рустик. Однако следует учитывать, что тут нужно особое внимание уделять безопасности. Следует обрабатывать поверхность древесины с помощью специальных составов, которые защищают ее и от вредителей, и от коррозии, и от повышенной влажности.
Не стоит исключать и вариант возведения на одном фундаменте двух зданий из разных материалов. С железным гаражом, например, может соседствовать традиционная деревянная баня. Это удобно, практично и очень красиво.
Собираясь совмещать баню и гараж, нужно все спланировать, подготовить проект. Подробная схема позволяет понять, как все будет выглядеть в итоге. Вы сможете избежать ошибок, которые невозможно будет исправить.
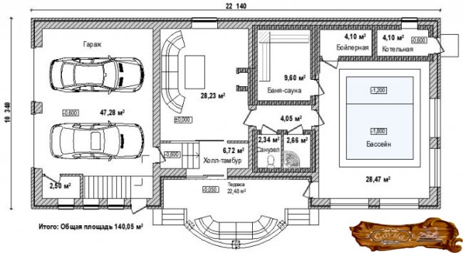
Внутри такой хозяйственной постройки найдется место для многих зон. Для экономии пространства на загородных участках все нужные помещения часто совмещают в один хозблок. В результате под одной крышей располагается и гараж, и баня, и даже летняя кухня.
Если планируется обустройство места для приятного отдыха в компании друзей, то к бане с гаражом можно пристроить полноценную сауну, а также беседку. Хорошая баня с террасой и смотрится красиво, и получается очень уютной.
В самом гараже может находиться смотровая яма, а также стеллажи для хранения инструментов, место для стоянки автомобилей. Если достаточно свободного места, то можно хранить в том же месте еще и инвентарь для грядок, сада – или даже твердое топливо для печи в бане.
Для большего удобства в бане также может находиться парилка, моечная или предбанник.
При наличии такой полноценной сауны нужно позаботиться о том, чтобы горячий воздух и повышенная влажность не вредили автомобилю.
В некоторых случаях в подвале под гаражом помещают дополнительные полочки для хранения консервации и выращенных своими руками овощей. Так и пространство используется максимально рационально, и банки не занимают место на полках в гараже.
Стоит упомянуть еще и необходимость проведения коммуникаций. Все системы должны быть утверждены в проекте еще до воплощения вашей задумки в реальность. Подключать стоит только самое необходимое.
Следует всегда учитывать то, как все это отразится на семейном бюджете.
Как в стандартном, так и в достаточно маленьком помещении вы вполне сможете расположить гараж, совмещенный с баней или сауной. У каждого варианта с разными параметрами есть свои особенности, которые следует учитывать.
Бывают случаи, когда приходится всеми силами экономить свободное пространство, а все необходимые зоны надо разместить в постройке размером 6 х 4 или 6 х 7. Как правило, в подобных ситуациях большую часть пространства отделяют под гараж, где находится транспортное средство.
Когда места чуть больше, можно выделить свободное пространство и под полноценную сауну. В гараж в таком случае поместятся и стеллажи, и место для хранения топлива. На полках найдется место и для садовых инструментов, и для всего остального, что используется в саду и огороде. Постройки в 10 х 4 метров хватит для обустройства места, где можно и работать, и отдыхать.
Постройка гаража с баней – это сложный процесс, который включает в себя сразу несколько этапов. Проекты такого типа нужно подготавливать заранее. Чтобы сделать все по правилам, рекомендуется подготовить схемы, чертежи и заверить их.
При желании можно либо строить все своими руками, либо обратиться за помощью к опытным профессионалам. Баня с гаражом может строиться либо с нуля, либо по частям, когда к готовому помещению пристраивается другое.
Гараж и баня, которые находятся в одном хозяйственном блоке, занимают достаточно много места. По этой причине территория, на которой начинается строительство, должна быть достаточно просторной и подходящей под размеры помещений.
Такой блок строится на определенном расстоянии от дома. Тем, кто строит здание с нуля, стоит учитывать рекомендации специалистов. Во-первых, гараж с баней должен располагаться в пяти метрах от дома, не ближе. Во-вторых, на территории не должно быть слишком много деревьев, кустарников и других зеленых насаждений.
Для удобства пользования и гаражом, и баней их можно расположить рядом с колодцем или колонкой. Это облегчит процесс подачи воды и ее отвода. Важно учитывать и то, насколько удобно будет выезжать из гаража. Ворота этой постройки должны выходить либо на улицу, либо на подъездную дорожку, ведущую к выходу со двора. Так водитель будет иметь возможность выехать со двора даже в плохую, дождливую погоду.
Когда проект закончен, можно переходить к подготовительным работам. На этом этапе нужно осуществить все необходимые расчеты. Если постройка возводится с нуля, надо принимать во внимание особенности почвы, вес фундамента и здания, глубину залегания вод – и так далее. Только в этом случае гараж и баня получатся не менее красивыми и надежными, чем жилое помещение.
Нужно также просчитать и количество материалов, которые понадобятся для работы. Кроме того, нужно оставить еще двадцать процентов от общего бюджета на дополнительные расходы, чтобы нехватка материалов в определенный момент не остановила работу.
Полноценное обустройство бани заслуживает отдельного внимания. Построить ее можно на втором этаже или рядом с гаражом. Главное – сделать так, чтобы в помещении было все необходимое для полноценного отдыха, и чтобы при этом повышенная влажность не вредила ни стенам, ни находящемуся поблизости авто.
Для хорошей бани очень важно обустроить водосток, ведь именно туда будет уходить грязная вода. В гаражной постройке наличие водостока, как правило, не предусмотрено. По этой причине приходится продумывать систему канализации отдельно.
Самый доступный и наиболее простой в реализации вариант – просто подвести сливную трубу из бани и подсоединить ее к общей канализационной системе. При этом вам не придется строить ничего нового или кардинально менять дренажную систему на участке.
Когда проблема с водостоком решена, можно заниматься приведением в порядок самой бани. Если есть место, лучше сразу заняться обустройством полноценной парилки. На этом этапе нужно поставить хорошую печку. Ее можно либо купить, либо соорудить своими руками (из доступных заготовок).
Обязательно нужно позаботиться о безопасности. Для этого следует изолировать все провода. Так можно быть уверенным в том, что не будет замыкания, что отдых не закончится какими-либо неприятностями.
Каждый хозяин при обустройстве своего загородного участка старается сделать его более индивидуальным. Однако иногда приходится сталкиваться с ситуациями, когда нет никакого вдохновения и идей для работы. В этом случае помогают простые примеры уже готовых работ.
Не всегда материалов хватает на то, чтобы построить полноценный гараж, совмещенный с баней. Иногда такая постройка отпугивает высокой стоимостью древесины или блоков, в других случаях не хватает денег на то, чтобы изолировать одно помещение от другого и обеспечить безопасность. Жертвовать полноценным гаражом приходится в любом случае. Однако это не значит, что машину придется ставить прямо под открытым небом, ведь всегда можно обустроить рядом с баней стоянку.
Данный пример – это классическая деревянная баня с покатой крышей, которая дополнительно поддерживается колоннами. Это выгодно, поскольку автомобиль защищен от солнечных лучей, дождя и снега. Основное помещение занимает баня, в которой хватит места и для душа, и для полноценной парилки с хорошей печкой.
Если вы не стеснены в средствах, можно построить рядом с домом красивую сауну с террасой и гаражом на два автомобиля. Наличие двух ворот позволит сохранять в помещении тепло, к тому же въезжать будет очень удобно. С другой стороны располагается вход в баню. Это не просто парилка, но и место для полноценного отдыха. После хорошего вечера в парилке можно спокойно посидеть в компании друзей на террасе, ведь места на всех точно хватит.
Этот вариант подойдет для тех, кто не экономит, но пытается разместить все нужное на небольшом участке. Первый этаж такой постройки отводится под гараж. Широкая подъемная дверь обеспечит комфорт при выезде на улицу.
На втором же этаже можно расположить баню: даже на таком небольшом участке хватит места для парилки и печки. Столик или шезлонги можно разместить на балконе. Постройка такого типа выглядит хорошо и без дополнительного декора, если же есть возможность украсить готовое здание, стоит ею воспользоваться. Массивная лепнина, красивые кованые элементы и широкие колонны даже хозяйственную постройку сделают по-настоящему роскошной.
Воплотить в реальность творческую задумку совсем не сложно – особенно в том случае, если учитывать все рекомендации специалистов и различные нюансы. Главное – творческий подход и упорство.






























